RIF FE_03 – Ferrara Centro Storico (FE) Appartamento di pregio PT
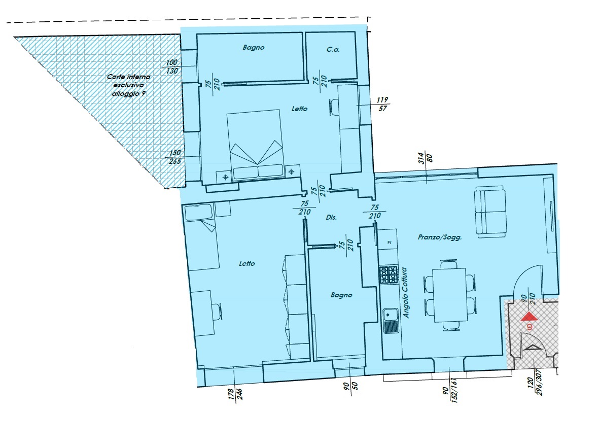
In una laterale di Corso Giovecca, nelle adiacenze del Castello Estense, libera subito prestigiosa unità immobiliare ad uso civile abitazione sita al piano terra, facente parte di un importante e totale ristrutturazione dello stabile. L’immobile, della consistenza di circa 110 mq è così composto: ingresso su soggiorno con cucina a vista, disimpegno, nella zona notte troviamo una camera da letto matrimoniale con bagno privato, una seconda camera da letto matrimoniale, bagno, ripostiglio, accesso diretto su corte privata. Impianti completamente indipendenti. Classe Energetica A1. Finiture di pregio. Possibilità di detrazione fiscale. Eventuale acquisto/affitto di garage o posto auto nelle immediate vicinanze. Potete contattarci senza impegno per ricevere maggiori informazioni in merito l’immobile in oggetto e fissare un appuntamento in loco con un nostro collaboratore per prendere visione della vostra futura casa.
| Tipologia | Appartamento |
|---|---|
| Contratto | Vendita |
| Ambienti | 3 |
| Provincia | Ferrara |
SCRIVICI
















