RIF A67 – Ferrara (FE) Appartamento buono stato al quarto piano
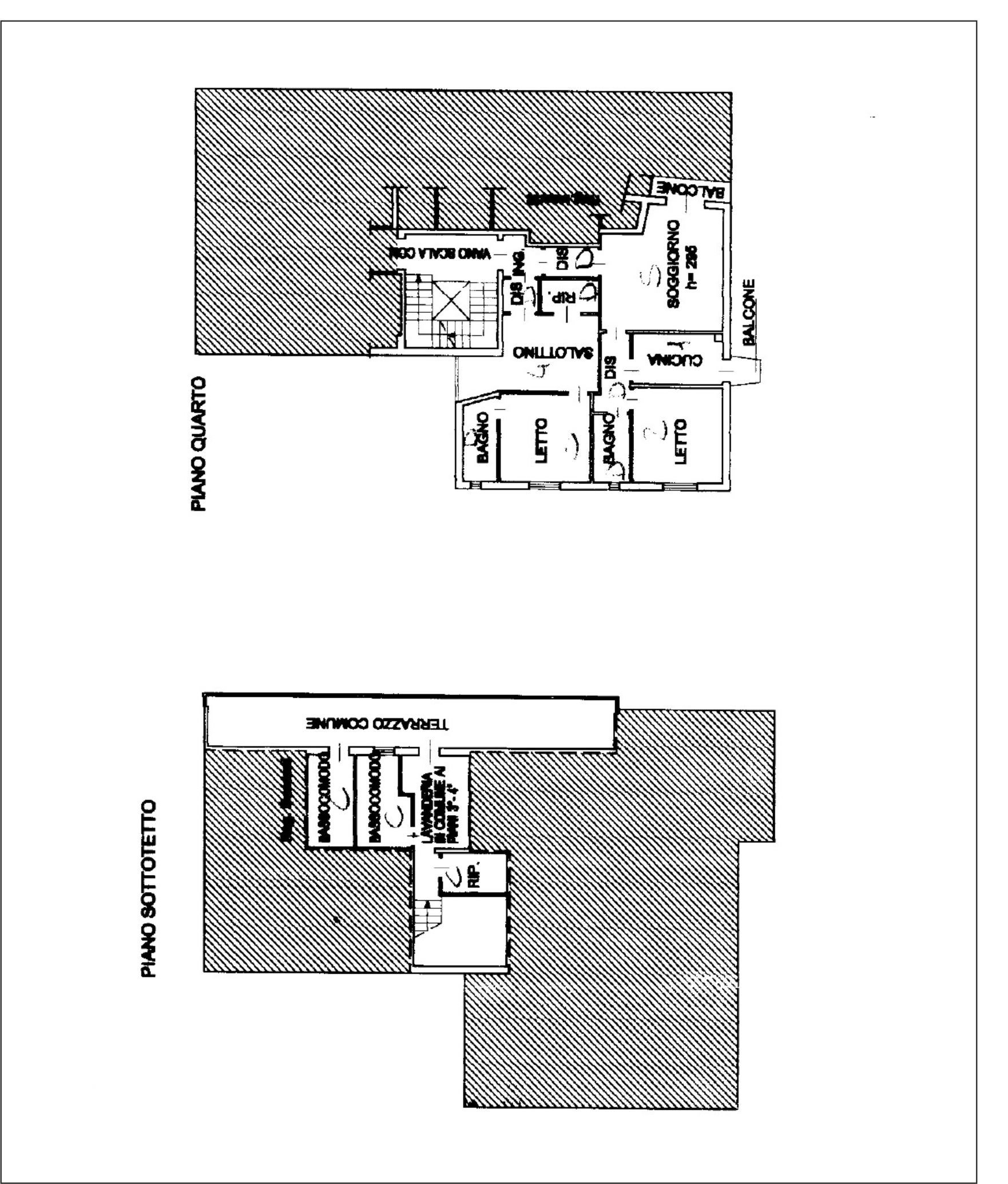
FERRARA – VIA ORTIGARA (San Paolo) L’immobile viene venduto dal tribunale tramite asta giudiziaria e il prezzo indicato si riferisce all’offerta minima. Appartamento della consistenza di circa 110 mq in discreto stato di manutenzione e così composto: ingresso, soggiorno con balcone, cucina con balconcino, disimpegno, camera da letto matrimoniale e bagno da una parte; salottino con veranda, camera da letto matrimoniale e bagno dall’altra parte; completano l’appartamento tre locali di servizio al quinto ed ultimo piano o sesto piano fuori terra. Per chi acquista come prima casa, sono previste agevolazioni. Cerchi casa all’Asta? Hai una casa pignorata? Possiamo aiutarti! Pensi che il mutuo al 100% sia solo una pubblicità? STONEHENGE immobiliare ha la soluzione! Cosa aspetti? CHIAMACI Andrea 340-6482495 Vi invitiamo a fissare una prima consulenza gratuita presso uno dei nostri uffici di Ferrara, Bologna, Modena o Porto Garibaldi per ricevere maggiori informazioni sul processo di partecipazione ad un’asta giudiziaria, tempistiche, costi e modalità di acquisto. Ulteriore documentazione disponibile verrà messa a disposizione durante la consulenza. Le immagini potrebbero differire dallo stato rappresentante degli immobili reali, alcune sono solo ad esempio. La posizione dell’immobile, fornita automaticamente dal web, potrebbe contenere inesattezze. L’ESATTEZZA DI TUTTI I DATI PUBBLICATI INOLTRE SARA’ DISCUSSA IN SEDE DI CONSULENZA.
| Provincia | Ferrara |
|---|---|
| Ambienti | 5 |
| Contratto | Asta, Vendita |
| Tipologia | Appartamento |
| APE | in fase di definizione |
SCRIVICI





















